Projets
Agence
Contact
Projets
Agence
Contact
L’EMAIL
Share:
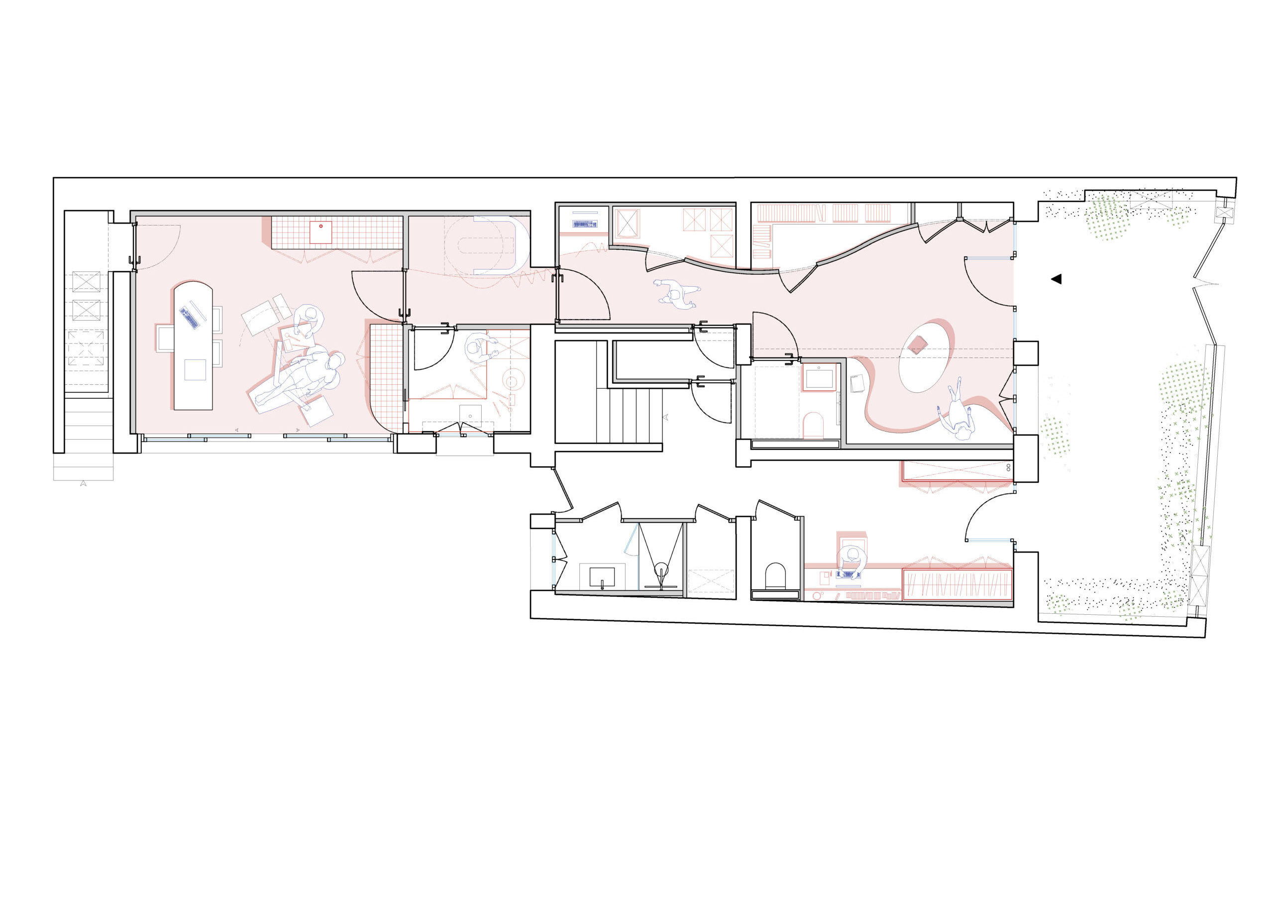
Aménagement d’un cabinet dentaire
FONTENAY-SOUS-BOIS
2021
65 m2
120 000 euros ht
Mission complète
Architecte Associée : Agathe Marimbert
Photographies : Philippe Billard