Projets
Agence
Contact
Projets
Agence
Contact
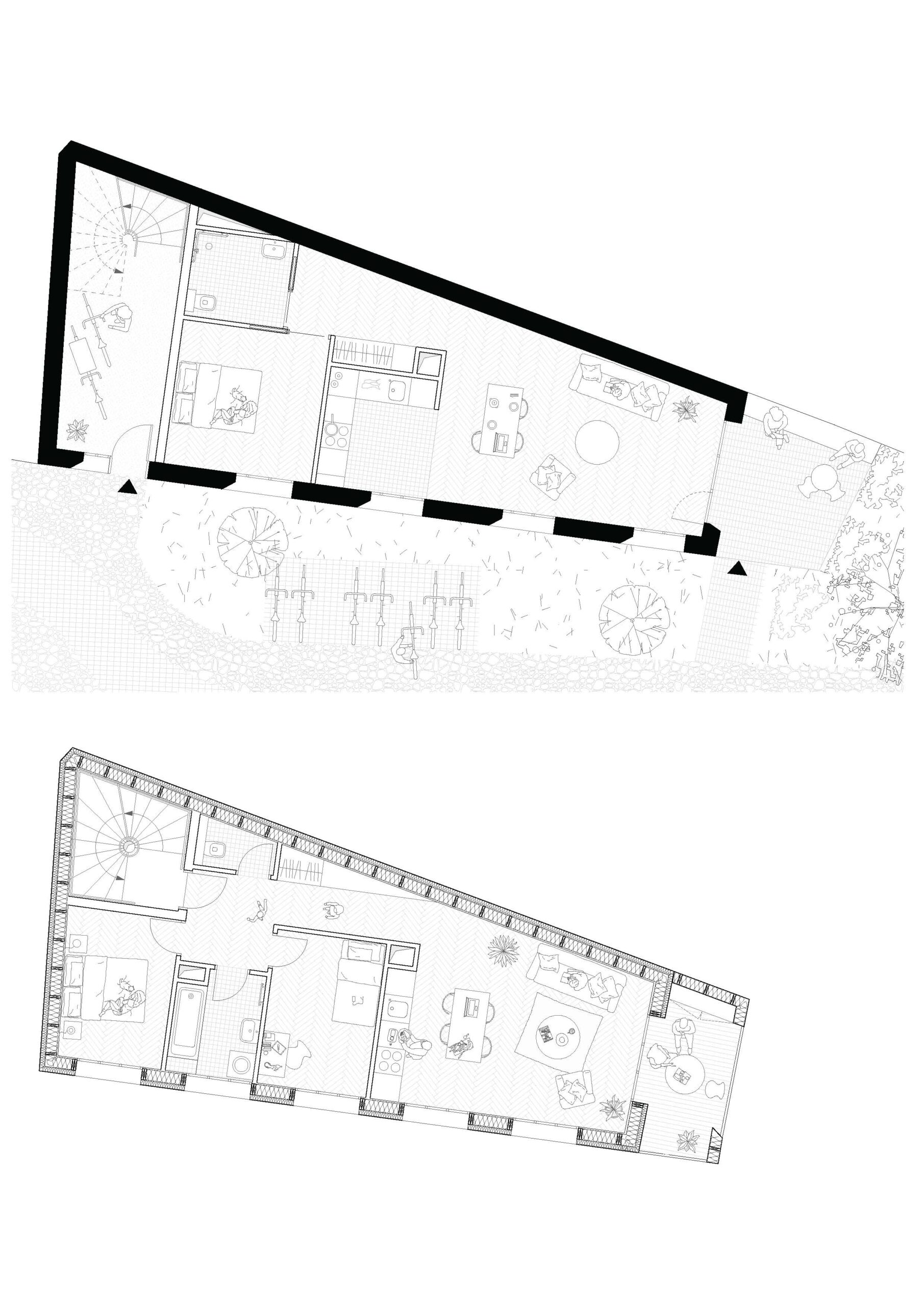
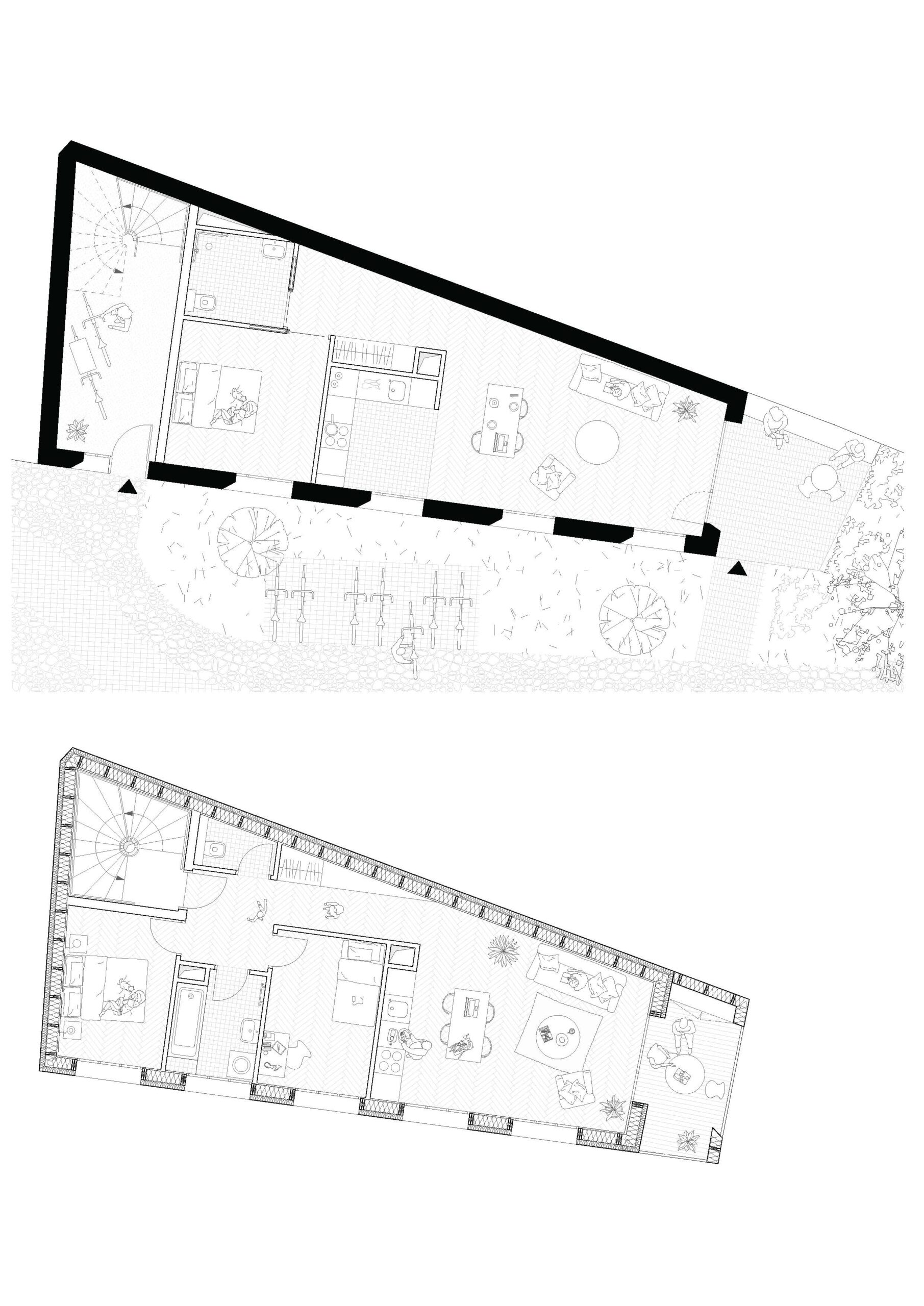
3 LOGEMENTS EN BRS
Share:
Construction de 3 logements
Rez de Chaussée en pierre massive
Etages en terre paille Enduit à la chaux
Charpente bois
Ville de Le Palais (56)
Budget : 454000 euros
204 m²
Conception
2023